Piso en venta. Piso en Monastir. Cerca de Av Cerdanyola. 100m2, 3hab, 2 baños completos, Balcon. 1 plaza de Parking incluida y una opcional..
Cód. (294100)A metros de Av Cerdanyola Ver mapa
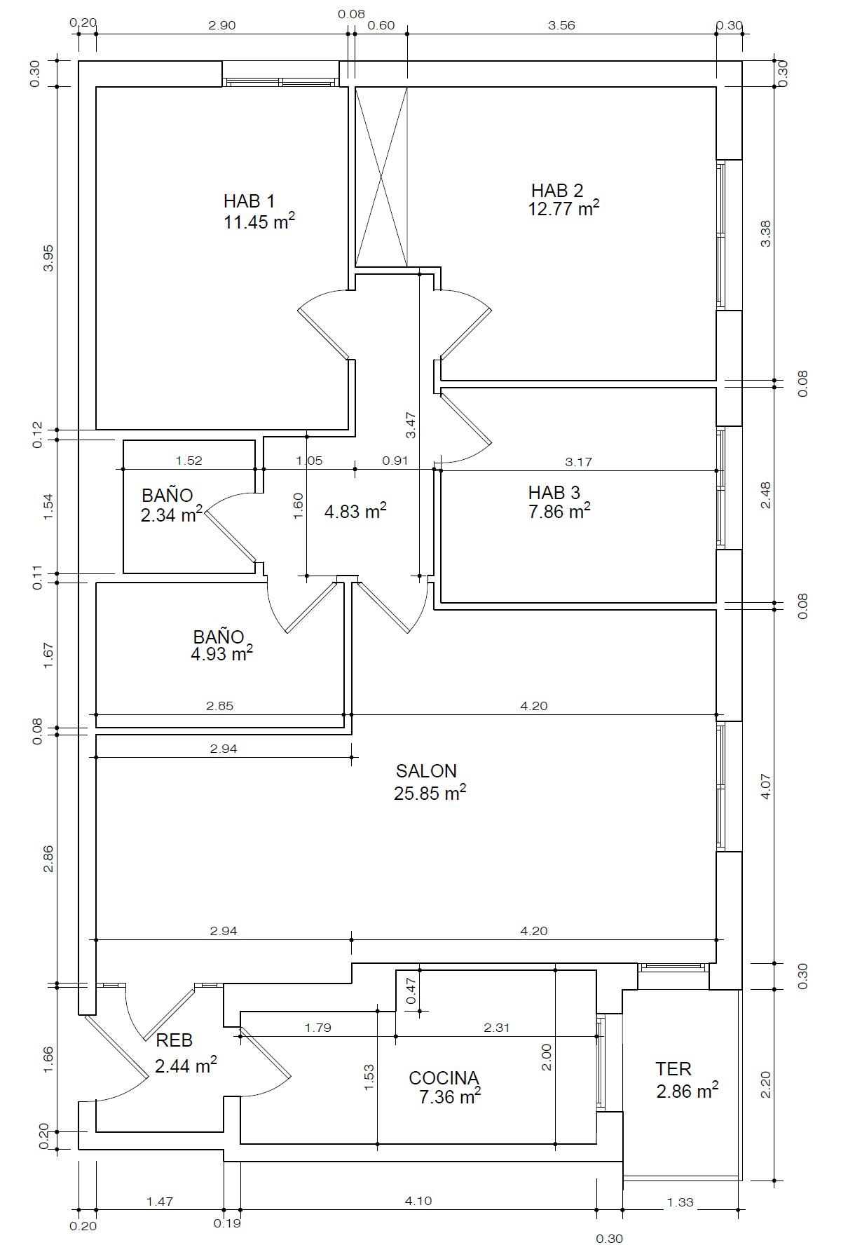
- 100 m²
- 3 hab
- 2 Baños
- Ascensor
- Terraza
Descripción
La vivienda cuenta con una superficie de 100 m² distribuidos de forma funcional y cómoda. Dispone de tres habitaciones, ideales tanto para familias como para quienes necesiten espacio adicional para teletrabajar o destinar una de ellas a cuarto de juegos o estudio. Además, cuenta con dos baños completos que ofrecen comodidad y privacidad a todos los miembros del hogar.
El salón-comedor es amplio y luminoso, con salida directa a un balcón que disfruta de orientación este, lo que garantiza sol y claridad durante gran parte del día, creando un ambi ...
La vivienda cuenta con una superficie de 100 m² distribuidos de forma funcional y cómoda. Dispone de tres habitaciones, ideales tanto para familias como para quienes necesiten espacio adicional para teletrabajar o destinar una de ellas a cuarto de juegos o estudio. Además, cuenta con dos baños completos que ofrecen comodidad y privacidad a todos los miembros del hogar.
El salón-comedor es amplio y luminoso, con salida directa a un balcón que disfruta de orientación este, lo que garantiza sol y claridad durante gran parte del día, creando un ambiente cálido y acogedor. La cocina es independiente y permite un uso cómodo y práctico para el día a día.
El piso cuenta con dos parking opcionales, las dos de gran tamaño en la misma finca, un valor añadido muy apreciado en esta zona.
El edificio, construido en 1994, se encuentra en buen estado de conservación y cuenta con ascensor. Se trata de una finca tranquila, con vecinos estables, en una zona consolidada que ofrece proximidad a colegios, supermercados, transporte público y zonas verdes.
Una oportunidad ideal para quienes buscan calidad de vida en una de las zonas más demandadas de Sant Cugat.
PARA PROPIETARIOS:
¿Necesitas vender para comprar? te ayudamos coordinándolo todo y con hipoteca cambio de casa.
¿Tienes prisa en vender? te ofrecemos una venta rápida con todas las garantías.
¿Necesitas una hipoteca? en donpiso la encuentras y en condiciones preferentes.
¿Herencias?, ¿Divorcios?, te ayudamos y coordinamos todo.
Infórmate: 93 025 33 07 - bcnsantgervasi1@donpiso.com
Distribución
- 3 Habitaciones Dobles
- Salón
- Cocina
- 2 Baños
- Terraza
- 2 Parkings
Características principales
- Piso
- Para entrar a vivir
- Reformado
- 100 m²
- 3 Habitaciones
- 2 Baños
- Ascensor
- Antigüedad 31 años
- Planta 2ª
- Terraza
- Parking
Otras características
- Orientación Este
- Muy Luminoso
- Sol todo el día
- Exterior a Calle
- Ventanas de aluminio
Certificado energético
- 
                            Consumo 
                            C  59 kW h  m² / año 59 kW h  m² / año
- 
                            Emisiones 
                            C  12 kg CO2  m² / año 12 kg CO2  m² / año
Ver etiqueta calificación energética
* Calificación de eficiencia energética de vivienda terminado según RD 235/2013 de 5 de Abril
Reformas al mejor precio
Hipoteca que incluye la reforma.
Financiación especial.
Ubicación
A metros de Av Cerdanyola
Torreblanca-Ctra. Cerdanyola, Sant Cugat Del Vallès
*Ubicación aproximada
Precio
- Precio del inmueble: 498.000 €
- Precio por m²: 4.980 eur / m²
* Las superficies expresadas en esta página tienen carácter descriptivo y son aproximadas. Los precios pueden ser susceptibles de modificación sin previo aviso.
* El PVP indicado no incluye impuestos ni gastos de Escritura.
Consigue tu hipoteca con un extra para reformas solo con donpiso.
Impuestos y gastos aproximados + info.
Dinero que aportas de tus ahorros
Importe del préstamo
Se recomienda no superar el 80 % del precio de compra. + info.
Plazo del préstamo
Este resultado es orientativo, según los números que has introducido.
¿Hay algún error en este anuncio?
Infórmanos para corregirlo y ayudar a otros usuarios.
 
                     
                     
                     
                     
                     
                     
                     
                     
                     
                     
                     
                     
                     
                     
                     
                     
                     
                     
                    